Το Π.Τ.Δ.Ε. του Δ.Π.Θ. βρίσκεται στη Νέα Χηλή (2ο χιλιόμετρο της Εθνικής Οδού Αλεξανδρούπολης–Κομοτηνής) (Εικόνα 6α).
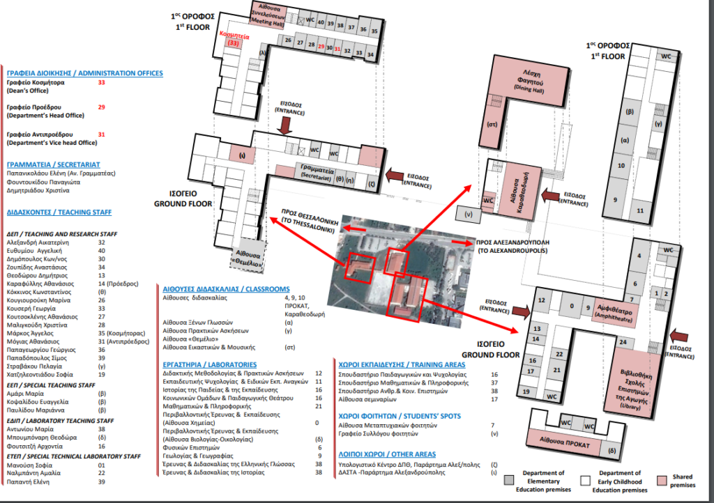
Όπως αποτυπώνεται στην Εικόνα 6β, το Π.Τ.Δ.Ε. στεγάζεται στα ακόλουθα τέσσερα κτήρια:
- στο (παλαιό) κτήριο Α στεγάζονται γραφεία Προσωπικού του Τμήματος, χώρος για τους φοιτητές των ΠΜΣ, εργαστήρια, η Βιβλιοθήκη, οι αίθουσες διδασκαλίας 4, 9, 10 και το αμφιθέατρο, χωρητικότητας περίπου 50, 75, 75 και 140 ατόμων, αντιστοίχως
- στο (νέο) κτήριο Β στεγάζονται η αίθουσα Συνελεύσεων & Τηλεματικής, η Γραμματεία του Τμήματος, γραφεία προσωπικού, σπουδαστήρια, η αίθουσα «Θεμέλιο» και το κυλικείο
- στο κτήριο Γ στεγάζονται η αίθουσα Καραθεοδωρή χωρητικότητας 246 ατόμων, η αίθουσα Εικαστικών και Μουσικής, καθώς και η Φοιτητική Λέσχη
- στο (ΠΡΟΚΑΤ) κτήριο Δ στεγάζονται η Αίθουσα ΠΡΟΚΑΤ χωρητικότητας περίπου 170 ατόμων και εργαστήρια.
Σχήμα 6: (α) Επισήμανση της θέσης του Π.Τ.Δ.Ε. στην περιοχή της Αλεξανδρούπολης και (β) Αποτύπωση της οργάνωσης του κτηριακού συμπλέγματος όπου στεγάζεται το Π.Τ.Δ.Ε.(Επιμέλεια Επικουρη Καθηγήτρια Σοφία Χατζηλεοντιάδου)
α
β
Σχήμα 7 : Παρουσιάζονται λεπτομερώς οι χώροι στέγασης του Π.Τ.Δ.Ε. ανά κτήριο και χρήση.(Επιμέλεια Επικουρη Καθηγήτρια Σοφία Χατζηλεοντιάδου)

Σχήμα 7. Οι χώροι στέγασης
Διεύθυνση
Παιδαγωγικό Τμήμα Δημοτικής Εκπαίδευσης,
Δημοκρίτειο Πανεπιστήμιο Θράκης,
Νέα Χηλή, 68131, Αλεξανδρούπολη
25510 30024
secr@eled.duth.gr
Ο Πρόεδρος και τα μέλη του Διδακτικού Προσωπικού καλωσορίζουν τους νεοεισαχθέντες φοιτητές του Τμήματος.
Στόχος μας είναι η παροχή των κατάλληλων εργαλείων, σε κάθε μέλος του Τμήματος. Επιλέξτε εδώ για να δείτε τις